Skip to content

VA-teknik & Pumptjänster

Komplett pumptjänst över hela Sverige

Drotz Drängar AB samarbetar med Pumpservice AB Götaland, en märkesoberoende specialistverkstad med egen anläggning i Habo.

Genom detta partnerskap kan vi erbjuda snabbare och säkrare leveranser av pumpar och reservdelar till kunder i hela Sverige. Vi täcker hela pumpens livscykel.

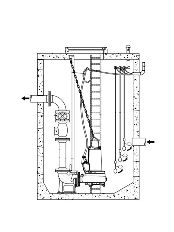
Vi bygger om pumpstationer och kan bokas för löpande kontrakt av service avtal. Vi har utbildningar för arbeten i denna speciella miljö.

Vi hjälper till med

Service & Underhåll

Service & Underhåll

Reparation & Ombyggnad

Reparation & Ombyggnad

Service & Underhåll

Service & Underhåll

Reservdelar & Expertrådgivning

Reservdelar & Expertrådgivning

Kontakta oss idag för allt inom pumpteknik – vi ordnar resten.

Du får tillgång till specialistkompetens genom oss som lokal, tillgänglig kontakt. Vi är din direkta länk till snabb och professionell pump-service.